Ngay sau khi đấu thầu thành công lô đất đấu giá ĐM1 rộng 6.5ha tại phường Đại Mỗ với giá hơn 860 tỷ đồng vào ngày cuối tháng 7/2017, Chủ đầu tư FLC đã ngay lập tức bắt tay triển khai dự án. Đây là khu đô thị mới nhất tại Hà Nội của tập đoàn FLC, nằm ngay mặt đường tỉnh lộ 70A mới, gần trục đường Lê Quang Đạo kéo dài, sát với khu đô thị FLC Garden City của chủ đầu tư trước đó và Khu TTTM Aoen Mall Hà Đông, hứa hẹn sẽ tạo nên 1 quần thể đô thị thương mại tiện nghi, không gian sống xanh, đẳng cấp, sầm uất nhất phía Tây Hà Nội mà không dự án nào có được.
QUÝ KHÁCH VUI LÒNG LIÊN HỆ TRỰC TIẾP PHÒNG DỰ ÁN ĐẠI DIỆN CĐT ĐỂ ĐẢM BẢO QUYỀN LỢI NHẤT.
.png)
Ưu điểm nổi bật của dự án:
Vị trí đắc địa, lợi thế đầu tư sinh lời cao: Dự án nằm trên trục chính tỉnh lộ 70 mới và đường Lê Quang Đạo Kéo Dài chỉ cách Bộ Ngoại Giao 1km, được bao quanh bởi 2 TTTM Aoen Mall Hà Đông và khu TTTM hạng 1 mang đến dự án rất nhiều lợi ích và giá trị lâu dài, cơ hội đầu tư sinh lời lớn.
Không gian sống chuẩn mực: Mật độ xây dựng chỉ 35% cùng lượng dân ít sẽ tạo nên 1 khu đô thị thông thoáng, tiện ích hạ tầng đồng bộ hiện đại.
Pháp lý hoàn thiện, chủ đầu tư uy tín.
Thiết kế kiến trúc hiện đại, trẻ trung.
Giá rẻ - CS bán hàng vô cùng ưu đãi so với các dự án cùng khu vực: C hiết khấu trực tiếp 10-12%/lô cho khách hàng mua buôn:
Liền kề: 65 - 70tr/m2 (Đã áp dụng chính sách mua buôn).
Biệt thự song lập: 56 - 60tr/m2 (Đã áp dụng chính sách mua buôn).
Shophouse mặt đường 30m: 95-100tr/m2 (Đã áp dụng chính sách mua buôn).
Sau khi có bảng giá chính thức, giá có thể thấp hơn.
Thanh toán linh hoạt: Đợt 1 50% khi ký HĐ vay vốn; sau 60 ngày đóng Đợt 2 50% và ký HĐMB, nhận bàn giao đất.
Khách hàng mua liền kề được tự xây dựng, linh hoạt thời gian xây dựng trong vòng năm 2 - 3 năm, tiết kiệm khoản tiền xây dựng khá lớn cho Khách hàng.
Tổng quan dự án
I.TỔNG QUAN DỰ ÁN BIỆT THỰ LIỀN KỀ FLC PREMIER PARK ĐẠI MỖ - LÊ QUANG ĐẠO
Tên dự án: FLC PREMIER PARK
Chủ đầu tư: Tập đoàn FLC
Vị trí dự án: Khu đô thị Dương Nội, Hà Đông, Hà Nội
Tổng thầu thi công: ...
Tổng diện tích dự án: 64.077 m2
+ Đất nhà liền kề: 8.968 m2
+ Đất biệt thự song lập: 6.533 m2
+ Đất cho cao tầng: 17.609 m2
Mật độ xây dựng: 30%.

Quy mô dự án: Gồm rất nhiều lô biệt thự, liền kề, và cung cấp ra thị trường bất động sản 91 căn liền kề, 54 căn biệt thự, nhà trẻ, nhà cao tầng, nhà ở xã hội trên khu đất, hoàn thành và đưa vào sử dụng vào cuối quý II/2019.
Chức năng: Trung tâm thương mại, Căn hộ khách sạn, Căn hộ, dịch vụ và văn phòng.…vv
Tiện ích dự án: Siêu thị, Nhà trẻ, spa, yoga, Khu sinh hoạt cộng đồng…vv
Hoàn thành và đi vào sử dụng: Quý II/2019.
Hình Thức Sở Hữu: Lâu dài
Giá bán: Khách hàng vui lòng liên hệ để nhận được tư vấn nhanh và chính xác nhất
Vị trí
II. VỊ TRÍ DỰ ÁN LIỀN KỀ BIỆT THỰ FLC PREMIER PARK ĐẠI MỖ - LÊ QUANG ĐẠO
FLC PREMIER PARK Lê Quang Đạo nằm tại cửa ngõ phía Đông Nam của thủ đô Hà Nội, liên kết vùng thuận tiện, cách BigC Thăng Long chỉ 2km, cách trung tâm quận Cầu Giấy 3km, cách đường Lê Văn Lương kéo dài chỉ 1,5km,.. Đặc biệt, tiếp giáp với Khu Đô Thị Vinhome Mễ Trì và nhiều khu đô thị lân cận..

Với mật độ chỉ 2 chung cư với gần 500 cư dân cùng với tổng 145 lô biệt thực liền kề và shophouse có thể coi là mật độ hết sức lý tưởng, để cư dân tại FLC PREMIER PARK Lê Quang Đạo có thể hoàn toàn yên tâm về vấn đề giao thông nội bộ thuận tiện. Bên cạnh đó, dự án còn được mở rộng đường thông trực tiếp sang tuyến được huyết mạch Lê Quang Đạo kéo dài, nội bộ đường dự án 12m – 18m. Tiện ích dự án gồm đất nhà trẻ, vườn cây xanh, khu trung tâm thương mại….
Phía Bắc: giáp đường 70A và UBND phường Đại Mỗ
Phía Tây: tiếp giáp KĐT FLC Garden City và Aoen Mall Hà Đông
Phía Đông: giáp trục đường Lê Quang Đạo kéo dài và KĐT Louis City
Phía Nam: giáp dự án khu trung tâm chỉ huy cán bộ chiến sỹ B32 và khu dân cư sinh
Liên kết vùng dự án:
- Gần những KĐT lớn: Parkcity, FLC Garden City, Vinhomes Thăng Long, Louis City, Khu vui chơi Thiên đường Bảo Sơn …
- Gần trường mầm non, tiểu học, THCS Đại Mỗ, THPT chuyên Nguyễn Huệ, chuyên Lương Thế Vinh, ĐH Hà Nội, ĐH Kiến trúc, Học viện An ninh nhân dân…
- Gần bệnh viện K, viện bỏng, viện 103, bệnh viện Đa khoa Hà Đông…
- Gần Bến xe Mỹ Đình, đường sắt Cát Linh–Hà Đông, TTTM Big C và Metro Hà Đông
Tiện ích
III.TIỆN ÍCH DỰ ÁN BIỆT THỰ LIỀN KỀ FLC PREMIER PARK ĐẠI MỖ - LÊ QUANG ĐẠO
Liền kề FLC PREMIER PARK Đại Mỗ - Lê Quang Đạo nằm trong quần thể xanh, dự án tích hợp đồng bộ hệ thống công viên cây xanh, sân vườn, trung tâm chăm sóc sức khỏe Gym, Spa, trung tâm mua sắm, nhà hàng... mang đến môi trường sống gần gũi với thiên nhiên, giúp cư dân tận hưởng tiện nghi của một khu biệt thự liền kề cao cấp.
Liền kề FLC PREMIER PARK chính là nơi bạn và gia đình cùng nhau sinh sống hạnh phúc với các tiện nghi vô cùng hữu ích, giúp cho cuộc sống của bạn trở nên hoàn hảo chính là món quà mà FLC PREMIER PARK Group dành tặng cho khách hàng thông qua việc tạo dựng FLC PREMIER PARK Đại Mỗ
Nằm trong dự án FLC PREMIER PARK Đại Mỗ - Lê Quang Đạo , nên các căn Liền kề cũng mang thiết kế lấy cảm hứng từ Đóa Nhài Tây thanh khiết, “nơi ngập tràn niềm vui sống” được thiết kế dựa trên nguyên tắc xanh – trong lành và cân bằng với “Concept vườn” độc đáo do hai thương hiệu thiết kế nổi tiếng thế giới CPG (Singapore) và West Green Design (Canada) tư vấn.
Mặt bằng - Căn hộ
Thiết kế mặt tiền liền kề FLC PREMIER PARK Đại Mỗ - Lê Quang Đạo
Liền kề FLC PREMIER PARK ĐẠI MỖ - LÊ QUANG ĐẠO thiết kế và bố trí không gian không quá rộng lớn và tráng lệ như biệt thự, mang đến sự ấm áp cho gia đình. Được tích hợp đầy đủ những dịch vụ tiện nghi hiện đạt nhất trong các căn hộ, mỗi căn liền kề tại khu đô thị FLC ĐẠI MỖ - LÊ QUANG ĐẠO đều là một tổ ấm lý tưởng cho mọi gia đình.
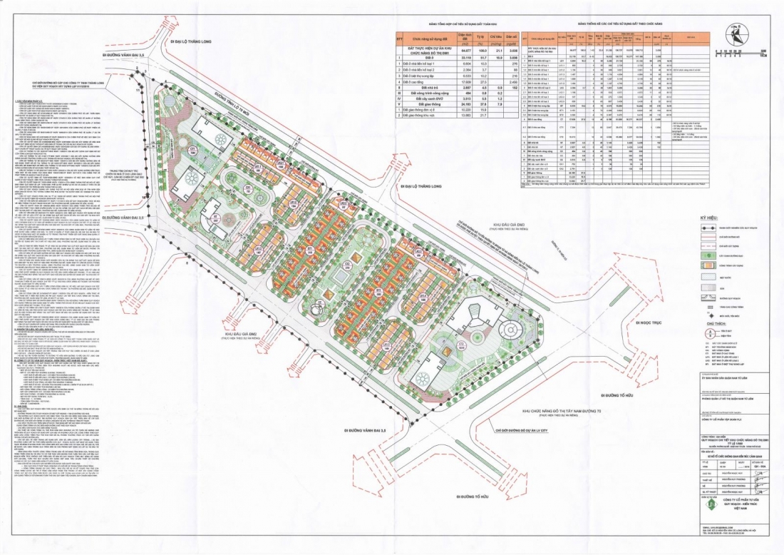
V.BẢN VẼ CHI TIẾT MẶT BẰNG PHÂN LÔ DỰ ÁN BIỆT THỰ LIỀN KỀ FLC PREMIER PARK ĐẠI MỖ
Liền kề mặt bằng FLC Premier Park là dự án có mật độ xây dựng thấp lý tưởng, chỉ 35% với 145 lô biệt thự liền kề, shophouse và 2 tòa chung cư cao tầng với 548 căn hộ.
Diện tích biệt thự liền kề dự án:
Biệt thự song lập: từ 120 m2 trở lên, xây cao 4 tầng
Shophouse mặt đường 30m: 90 - 154m2, xây cao 5 tầng
Liền kề: 90 - 126m2, xây cao 4 tầng.
Mặt tiền: 6 - 8m, chiều dài: 12-15m
Đường trước mặt: Liền kề - Biệt thự: đường nội bộ 8 - 12m, đường quy hoạch 27m. Shophouse mặt đường tỉnh lộ 70: 40m
Vỉa hè: Biệt thự - liền kề: 6-8m, Shophouse 12 m
Mật độ xây dựng: 80%

Giá bán - Chính sách
VI.GIÁ BÁN DỰ ÁN BIỆT THỰ LIỀN KỀ FLC PREMIER PARK ĐẠI MỖ - LÊ QUANG ĐẠO
Giá bán buôn: đã bao gồm chiết khấu ưu đãi:
Liền kề: 65- 70 triệu/m2
Biệt thự song lập: 56 - 60tr/m2
Shophouse mặt đường 30m:95 - 100tr/m2
Giá bán không áp dụng cho lô góc
Khách hàng được tự xây dựng trong thời hạn 2-3 năm
Giá bán lẻ: Không được hưởng chiết khấu ưu đãi:
Liền kề - biệt thự: 75 - 80tr/m2
Shophouse: 105 - 120 tr/m2
- Giá niêm yết CĐT 65 triệu/m2 ( đã bao gồm hoàn thiện hạ tầng và VAT )
- Nhằm mang lại lợi ích tối đa cho khách hàng, chúng tôi nhóm bán hàng của FLC PREMIER PARK cùng nhau thực hiện chính sách gom khách hàng để tất cả khách hàng khi mua đều nhận được giá tốt nhất, chi tiết xem tại đây.
VII.TIẾN ĐỘ THANH TOÁN DỰ ÁN BIỆT THỰ LIỀN KỀ FLC PREMIER PARK ĐẠI MỖ - LÊ QUANG ĐẠO
Đợt 1: Đặt cọc khóa căn 30 triệu:
Đợt 2: Thanh toán 50% tiền đất khi ký HĐ vay vốn.
Đợt 3: Thanh toán 50% tiền đất, ký HĐMB và nhận bàn giao đất (sau đợt 1: 60 ngày)
Tiến độ dự án
VI. TIẾN ĐỘ THỰC HIỆN TẠI DỰ ÁN BIỆT THỰ LIỀN KỀ FLC PREMIER PARK ĐẠI MỖ - LÊ QUANG ĐẠO
Hiện tại dự án đã hoàn thiện công việc san lấp mặt bằng, tạo cảnh quan chung, và phân lô bên trong dự án Các khách hàng mua đã nhận được ngay lô đất của mình và có thể tiến hành tự xây dựngđược ngay. Dưới đây là ảnh tiến độ dự án:
VII. QUÝ KHÁCH VUI LÒNG LIÊN HỆ TRỰC TIẾP PHÒNG DỰ ÁN ĐẠI DIỆN CĐT ĐỂ ĐẢM BẢO QUYỀN LỢI NHẤT.
.png)
Liên hệ


KHAI SƠN CITY
TẢI BẢNG GIÁ